交野市・枚方市・寝屋川市の不動産情報
トップ
>
新築物件一覧
>寝屋川市田井町
寝屋川市の新築物件
寝屋川市田井町 新築一戸建
・価格
2,980万円
・土地
72.72㎡
・建延
106.38㎡
・物件所在地
枚方市田井町
・構造
木造 地上3階建
・間取り
3LDK
・交通
京阪本線「香里園」駅より徒歩13分
・築年月日
令和7年2月末完成予定
★閑静な住宅地 ★収納豊富WCL付 ★小中学校も近く、お子様の通学も安心です(小学校570m/中学校350m)
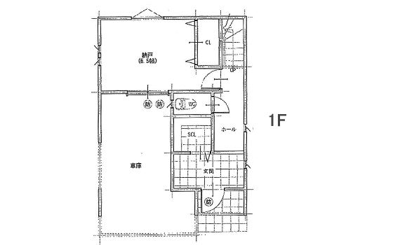
間取り図
下の縮小写真をクリックしてください
完成予想図
間取り図1F
間取り図2F
間取り図3F
内 容
設備
システムキッチン・カウンターキッチン
追い炊き機能
トイレ2ヶ所以上・温水洗浄便座・洗面所独立